ПРОЕКТ

Проект одноэтажного ДОМА с мансардым этажом ДЛЯ СТРОИТЕЛЬСТВА ПО КАРКАСНОЙ ТЕХНОЛОГИИ, ИЛИ ГАЗОБЕТОННЫХ БЛОКОВ

  • 3 спальни

  • ТЕРРАСА

  • СОВРЕМЕННЫЙ ВИД

  • НЕБОЛЬШОЙ ДОМ

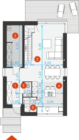
план
1 ЭТАЖА
МАНСАРДЫ
план

КОМПЛЕКТАЦИЯ

СТАНДАРТНАЯ КОМПЛЕКТАЦИЯ ДОМА ИЗ ГАЗОБЕТОНА
ПРОЕКТ ВАШЕГО ДОМА ОК
Эскизный и конструкторский проект, спецификация, размещение дома на участке.
ФУНДАМЕНТ ОК
Монолитная, утепленная ЖБ лента / плита - в зависимости от параметров участка, на основании проекта Вашего дома.
НЕСУЩИЕ СТЕНЫ
Газобетонные блоки Bonolit (или аналоги) 600x300x250 mm
Плотность D400 класс по прочности В2.5
ПЕРЕГОРОДКИ ОК
Перегородочные блоки Bonolit (или аналоги) 600x100x250 mm
Плотность D500 класс по прочности В3.5
ПЕРЕМЫЧКИ ОК
Армированные перемычки Bonolit (или аналоги)
и монолитный армирующий пояс на основании проекта Вашего дома.
МЕЖЭТАЖНОЕ ПЕРЕКРЫТИЕ ОК
Монолитная ЖБ плита или плиты перекрытия ПБ на основании проекта Вашего дома.
ЧЕРДАЧНОЕ ПЕРЕКРЫТИЕ ОК
Балки из строганной доски сечением 200х50 mm
Утепление каменной ватой на основании проекта Вашего дома.
СТРОПИЛЬНАЯ СИСТЕМА ОК
Лаги из строганной доски сечением 150х50 mm либо 200х50 mm
Утепление каменной ватой на основании проекта Вашего дома.
ПОКРЫТИЕ КРОВЛИ ОК
Металлическая черепица, сталь 0,5мм, оцинкованная
Подкровельная вентиляция, Гидроветрозащитная мембрана
полный комплект всех монтажных элементов кровли.
УТЕПЛЕНИЕ ОК
Утепление кровли и чердачного перекрытия негорючей изоляцией Paroc Extra или Rockwool (или аналоги).
ОКНА ОК
профиль 70 mm, двухкамерный энергосберегающий стеклопакет на основании проекта Вашего дома.
ДОПОЛНИТЕЛЬНЫЕ ОПЦИИ ДЛЯ ДОМА ИЗ ГАЗОБЕТОНА
ВНУТРЕННЯЯ ОТДЕЛКА
+
Выполнение черновой или чистовой отделки на основании проекта Вашего дома и договора.
НАРУЖНАЯ ОБЛИЦОВКА
+
Реализация наружной облицовки согласно договора на основании проекта Вашего дома и договора.
инженерные системы
+
Полностью готовый дом с коммуникациями - вода, электричество, канализация и отопление.
КОМПЛЕКТ МЕЖКОМНАТНЫХ ДВЕРЕЙ
+
поставка и монтаж дверей из массива, согласно проекту и спецификации.
МАНСАРДНЫЕ ОКНА
+
Установка мансардных окон с системой открывания.
НОВАЯ КРОВЛЯ
+
Замена металлической черепицы на мягкую битумную или фальцевую кровлю.
СТАНДАРТНАЯ КОМПЛЕКТАЦИЯ ДОМА ИЗ ДЕРЕВЯННОГО КАРКАСА
ПРОЕКТ ВАШЕГО ДОМА ОК
Эскизный и конструкторский проект, спецификация, размещение дома на участке.
ФУНДАМЕНТ ОК
ЖБ забивные сваи 150х150 mm, оголовок и обвязка фундамента из строенной доски 50х200 mm.
СИЛОВОЙ КАРКАС ДОМА ОК
Доска 1-го сорта строганная 50х200 mm / 50х150 mm и 50х100 mm
Укосины 25х100 mm
Обрешетка и контр.обрешетка из доски 25х50 mm / 50 mm
Антисептирование всего силового каркаса.
ЦОКОЛЬНОЕ ПЕРЕКРЫТИЕ ОК
Балки из строганной доски сечением 200х50 mm
Утепление каменной ватой на основании проекта Вашего дома.
МЕЖЭТАЖНОЕ ПЕРЕКРЫТИЕ ОК
Балки из строганной доски сечением 200х50 mm
Утепление каменной ватой на основании проекта Вашего дома.
ЧЕРДАЧНОЕ ПЕРЕКРЫТИЕ ОК
Балки из строганной доски сечением 200х50 mm
Утепление каменной ватой на основании проекта Вашего дома.
СТРОПИЛЬНАЯ СИСТЕМА ОК
Лаги из строганной доски сечением 150х50 mm либо 200х50 mm
Утепление каменной ватой на основании проекта Вашего дома.
УТЕПЛЕНИЕ и МЕМБРАННЫ ОК
Утепление цокольного перекрытия, кровли или чердачного перекрытия негорючей изоляцией Paroc Extra или Rockwool (или аналоги) толщиной 200 mm.
Утепление ограждающих стен 150 mm
Монтаж ветро-влагозащитной мембраны на кровлю/стены
Пароизоляция теплого контура с закладными, проклейка всего контура.
Установка сетки от грызунов.
ПОКРЫТИЕ КРОВЛИ ОК
Металлическая черепица, сталь 0,5мм, оцинкованная
Подкровельная вентиляция, Гидроветрозащитная мембрана
полный комплект всех монтажных элементов кровли.
ОКНА ОК
профиль 70 mm, двухкамерный энергосберегающий стеклопакет на основании проекта Вашего дома.
ДОПОЛНИТЕЛЬНЫЕ ОПЦИИ ДЛЯ ДОМА ИЗ ДЕРЕВЯННОГО КАРКАСА
НОВЫЙ ФУНДАМЕНТ
+
Выполнение фундамента по технологии УШП, либо выполнение утепленной ЖБ ленты / плиты - в зависимости от параметров участка, на основании проекта Вашего дома.
ВНУТРЕННЯЯ ОТДЕЛКА
+
Выполнение черновой или чистовой отделки на основании проекта Вашего дома и договора.
НАРУЖНАЯ ОБЛИЦОВКА
+
Реализация наружной облицовки согласно договора на основании проекта Вашего дома и договора.
инженерные системы
+
Полностью готовый дом с коммуникациями - вода, электричество, канализация и отопление.
КОМПЛЕКТ МЕЖКОМНАТНЫХ ДВЕРЕЙ
+
поставка и монтаж дверей из массива, согласно проекту и спецификации.
МАНСАРДНЫЕ ОКНА
+
Установка мансардных окон с системой открывания.
НОВАЯ КРОВЛЯ
+
Замена металлической черепицы на мягкую битумную или фальцевую кровлю.
ДОПОЛНИТЕЛЬНОЕ УТЕПЛЕНИЕ
+
Дополнительное утепление стен/ кровли и перекрытий, в 50 mm.
С общей толщиной стен 200 mm, перекрытий и кровли 250 mm.

ОТЗЫВЫ и построенные дома

ТИПОВЫЕ ПРОЕКТЫ

Оставьте свои контактные данные, и мы перезвоним Вам!
либо, позвоните по номеру: +7 925 885 4852
СВЯЖЕМСЯ ?